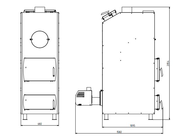
GREYKO air 30 kW

 

 

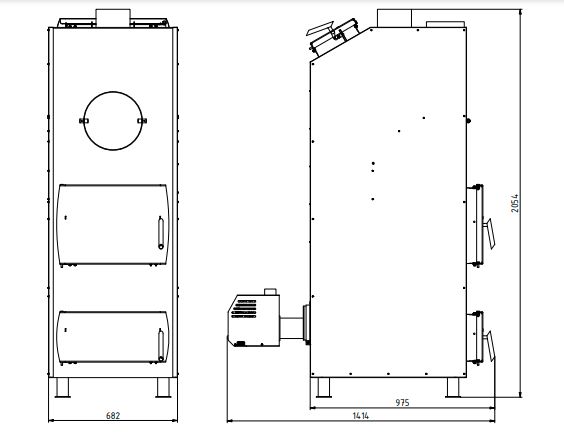
GREYKO air 50, 70 ja 100 kW

 

GREYKO õhkkütte pelletikatlad